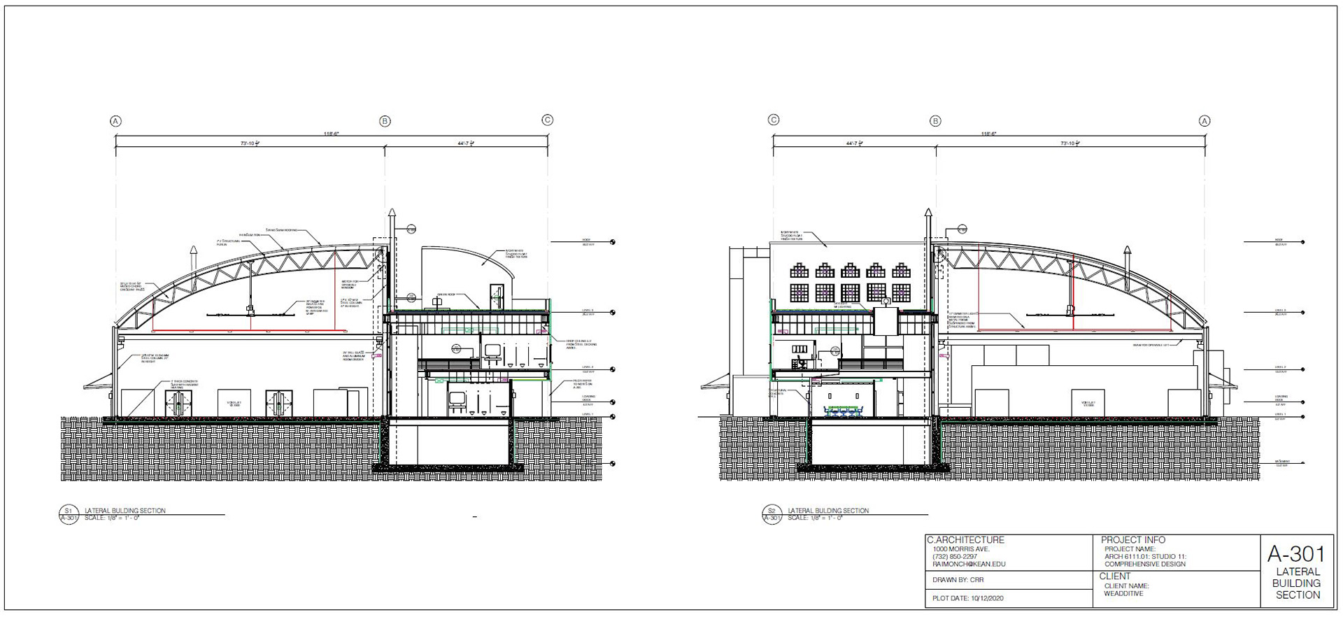
The Warehouse is a conceptual architectural design for a multi-use commercial space. It reimagines a traditional warehouse structure, transforming it into a modern, adaptable environment that integrates retail, office, and communal areas. The design emphasizes open layouts, natural light, and sustainable materials to create a flexible, community-oriented hub.






